+43 more
/ 48
+38
$459,000
2 bd
3 ba
1,792 sqft
1426 Setzer Cove Road
Maggie Valley, NC 28751
Active
332 days on market
Property Type
Residential
Year Built
1999
Lot Size
—
Garage
—
About This Home
One of a Kind Mountain Retreat in Gated Subdivision with Stunning Long-Range Views:
Experience the beauty of mountain living in this charming 2-bedroom retreat nestled in the gated Valley Vista subdivision of Maggie Valley. Enjoy breathtaking long-range views of the mountains and valley from both the upper and lower levels—your private escape surrounded by natural beauty.
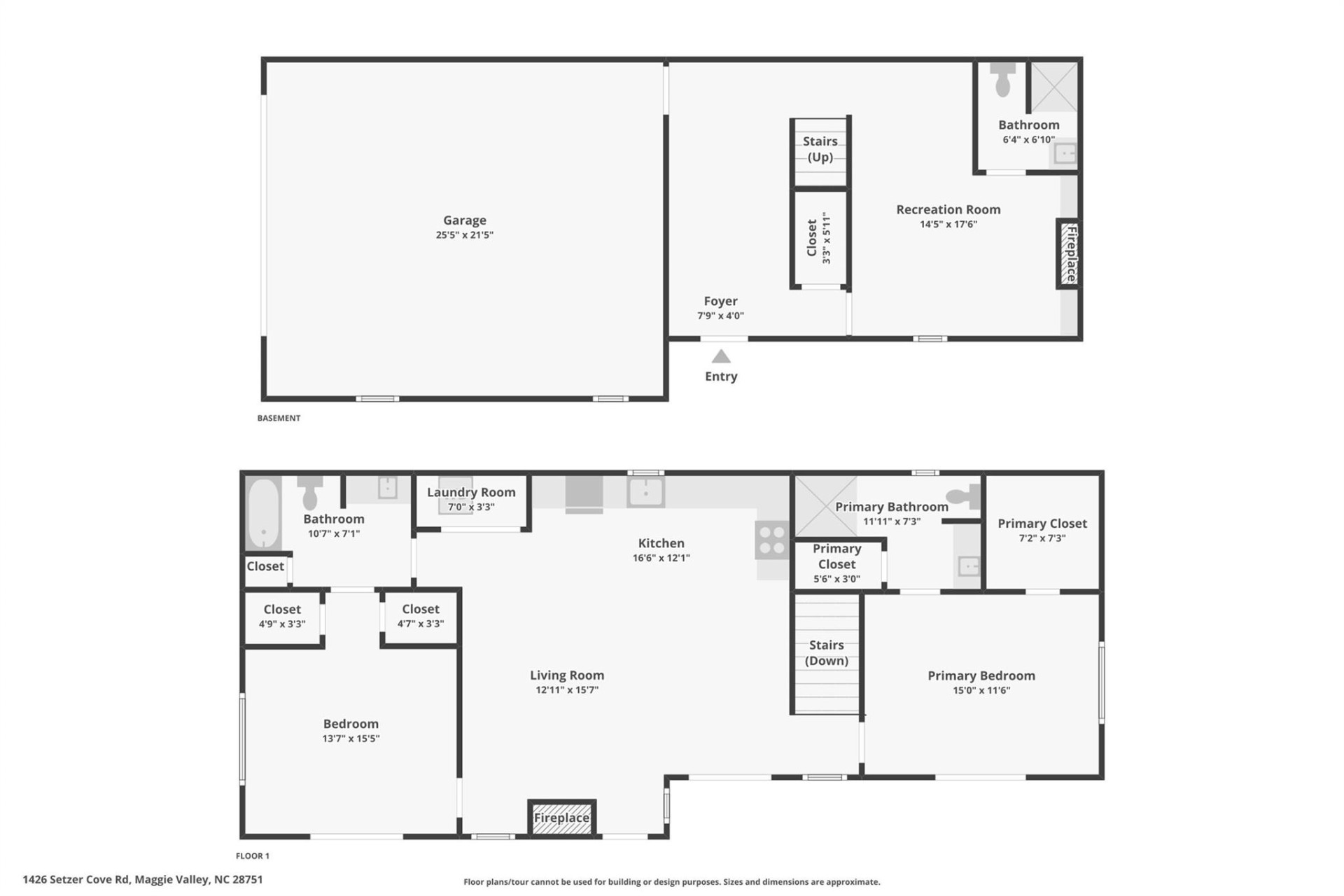
This thoughtfully designed home features two spacious primary suites on the upper level—one with a walk-in closet and the other with double closets—offering comfort and flexibility for owners and guests alike. Built in 1999, the wood-sided exterior blends timeless mountain character with modern updates across 1,792 heated square feet.
Between the bedroom suites you will find a light-filled great room where the kitchen, living, and dining areas come together seamlessly. Vaulted tongue-and-groove ceilings, skylights, and a striking floor-to-ceiling stone fireplace create a warm and inviting atmosphere. The kitchen is both functional and stylish, featuring a BOOS® butcher block island, high-end countertops, and a designer backsplash—perfect for entertaining or everyday living.
The lower/ walk-in level offers a generous bonus room ideal for a home office, guest space, or recreation area, along with a second fireplace for added comfort. With three full bathrooms, the home is well-equipped for hosting family and friends.
Outdoor living shines with multiple decks designed to take in the panoramic views, a hot tub for relaxing evenings, and space for gardening—all set on a private 0.63-acre lot within a secure, gated community.
Additional highlights include a large garage with utility sink, radon mitigation system, and HOA-maintained amenities. Recent updates include a new roof (2022) and new 10-year battery smoke detectors. The hot tub is operational and currently winterized.
Now priced at $459,000, this property offers exceptional value in a highly desirable location. Whether you're searching for a second home or a full-time residence, this peaceful mountain retreat delivers. Please note: short-term rentals are not permitted, preserving the quiet character of the community.
Come make Maggie Valley home! Priced to move quickly, so get it while you can at this price.
*New Roof in 2022
*New 10 year battery smoke detectors installed
**Community Spring water is included
*Hot tub/spa works but has been drained/winterized
Experience the beauty of mountain living in this charming 2-bedroom retreat nestled in the gated Valley Vista subdivision of Maggie Valley. Enjoy breathtaking long-range views of the mountains and valley from both the upper and lower levels—your private escape surrounded by natural beauty.
This thoughtfully designed home features two spacious primary suites on the upper level—one with a walk-in closet and the other with double closets—offering comfort and flexibility for owners and guests alike. Built in 1999, the wood-sided exterior blends timeless mountain character with modern updates across 1,792 heated square feet.
Between the bedroom suites you will find a light-filled great room where the kitchen, living, and dining areas come together seamlessly. Vaulted tongue-and-groove ceilings, skylights, and a striking floor-to-ceiling stone fireplace create a warm and inviting atmosphere. The kitchen is both functional and stylish, featuring a BOOS® butcher block island, high-end countertops, and a designer backsplash—perfect for entertaining or everyday living.
The lower/ walk-in level offers a generous bonus room ideal for a home office, guest space, or recreation area, along with a second fireplace for added comfort. With three full bathrooms, the home is well-equipped for hosting family and friends.
Outdoor living shines with multiple decks designed to take in the panoramic views, a hot tub for relaxing evenings, and space for gardening—all set on a private 0.63-acre lot within a secure, gated community.
Additional highlights include a large garage with utility sink, radon mitigation system, and HOA-maintained amenities. Recent updates include a new roof (2022) and new 10-year battery smoke detectors. The hot tub is operational and currently winterized.
Now priced at $459,000, this property offers exceptional value in a highly desirable location. Whether you're searching for a second home or a full-time residence, this peaceful mountain retreat delivers. Please note: short-term rentals are not permitted, preserving the quiet character of the community.
Come make Maggie Valley home! Priced to move quickly, so get it while you can at this price.
*New Roof in 2022
*New 10 year battery smoke detectors installed
**Community Spring water is included
*Hot tub/spa works but has been drained/winterized
Property Details
Interior
- Bedrooms
- 2
- Bathrooms
- 3
- Living Area
- 1,792 sqft
Exterior & Lot
- Year Built
- 1999
Location
- Subdivision
- Valley Vista
- County
- Haywood
- ZIP Code
- 28751
Financial
- Listing Terms
- Cash, Conventional
- HOA Fee
- $450/mo
Utilities
- Utilities
- Electricity Connected, Propane
- Sewer
- Septic Installed (Off Site)
Schools
- Elementary
- Jonathan Valley
- Middle School
- Waynesville
- High School
- Tuscola
Appliances
Dryer, Electric Cooktop, Electric Oven, Electric Water Heater, Exhaust Hood, Microwave, Refrigerator, Washer, Washer/Dryer
Patio & Porch Features
Covered, Deck
Lot Features
Corner Lot, Private, Sloped
Location
Listing Information
- MLS #
- CAR4249259
- Listing Agent
- Janet Frazier
- Listing Office
- Better Homes and Gardens Real Estate Heritage
- Listed Date
- Mar 15, 2026
Contact Jonathan Jackson About This Property
Interested in 1426 Setzer Cove Road? Send us a message and we'll get back to you.
Similar Properties
$460,000
3 bd 2 ba 1,624 sqft
46 Hummingbird Drive, Maggie Valley, NC, 28751
$339,000
2 bd 2 ba 1,100 sqft
34 Fernbrook Road, Maggie Valley, NC, 28751
$450,000
3 bd 2 ba 1,120 sqft
841 Evans Cove Road, Maggie Valley, NC, 28751
$476,000
2 bd 2 ba 1,402 sqft
1560 Country Club Drive, Maggie Valley, NC, 28751