+26 more
/ 31
+21
$360,000
2 bd
2 ba
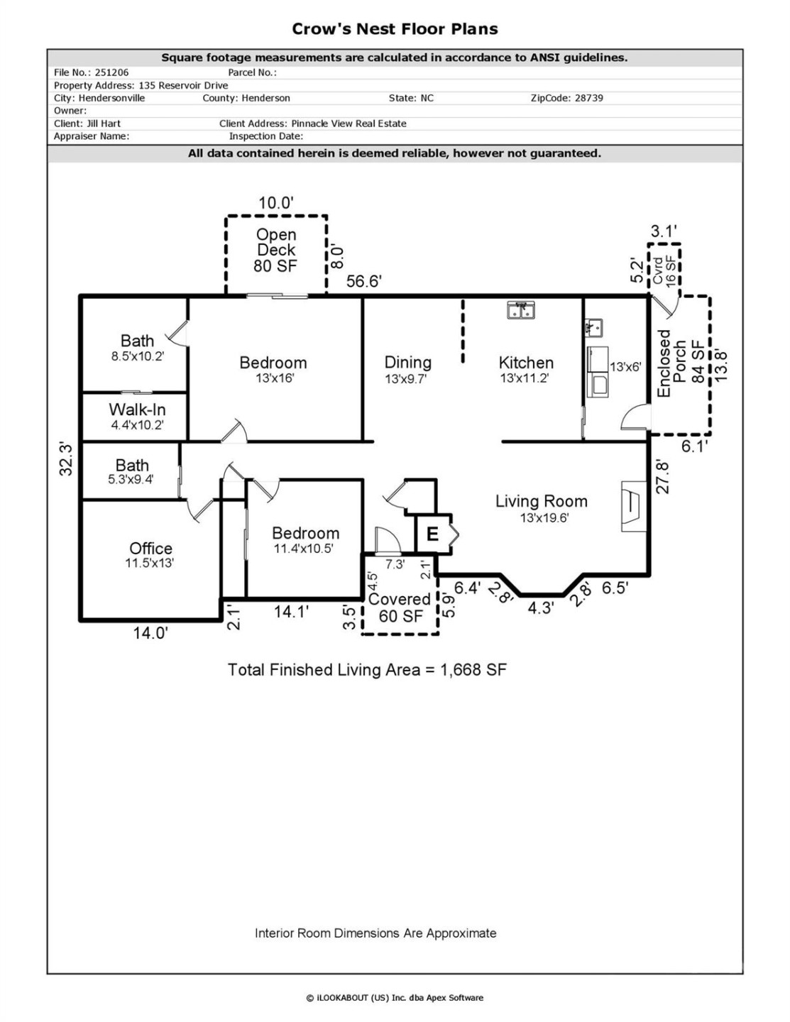
1,668 sqft
135 Reservoir Drive
Hendersonville, NC 28739
Active
74 days on market
Property Type
Residential
Year Built
2004
Lot Size
—
Garage
2 spaces
About This Home
ELEVATOR! This home is designed for ease and everyday comfort. With generous living spaces and a layout that supports everyday life you will settle in right away! Set at the end of the road in a quiet neighborhood, it offers a peaceful
setting while still keeping you close to town and everyday conveniences.
Inside, the main living areas feel open and inviting, with a natural flow that works well for daily
routines and entertaining. The living and dining spaces are comfortably sized, allowing room to
spread out, gather and move easily without feeling overly formal.
The kitchen connects seamlessly to the living areas, so you are never cut off from conversation.
There’s plenty of workspace and storage, and the layout makes simple meals and more involved
gatherings easy.
The primary bedroom provides a quiet place to unwind, featuring with a private deck, a large en-
suite bath, and a spacious walk-in closet. It’s easy to imagine starting the day with a cup of
coffee outside or winding down in the evening with a little extra space to relax.
The four-season room adds flexible space that you will likely use year-round. Whether it’s a
spot for morning coffee, reading, or extra seating when guests are over, it naturally
extends the living space. Don't miss the guest bedroom plus an additional room that can be used as office or craft space. One of the home’s most thoughtful features is the elevator that makes daily comings and goings
between the garage and main level easier and adds long-term flexibility to the home.
The neighborhood setting, combined with the home’s practical layout and easy accessibility, is
well suited for everyday living now and into the future.
setting while still keeping you close to town and everyday conveniences.
Inside, the main living areas feel open and inviting, with a natural flow that works well for daily
routines and entertaining. The living and dining spaces are comfortably sized, allowing room to
spread out, gather and move easily without feeling overly formal.
The kitchen connects seamlessly to the living areas, so you are never cut off from conversation.
There’s plenty of workspace and storage, and the layout makes simple meals and more involved
gatherings easy.
The primary bedroom provides a quiet place to unwind, featuring with a private deck, a large en-
suite bath, and a spacious walk-in closet. It’s easy to imagine starting the day with a cup of
coffee outside or winding down in the evening with a little extra space to relax.
The four-season room adds flexible space that you will likely use year-round. Whether it’s a
spot for morning coffee, reading, or extra seating when guests are over, it naturally
extends the living space. Don't miss the guest bedroom plus an additional room that can be used as office or craft space. One of the home’s most thoughtful features is the elevator that makes daily comings and goings
between the garage and main level easier and adds long-term flexibility to the home.
The neighborhood setting, combined with the home’s practical layout and easy accessibility, is
well suited for everyday living now and into the future.
Property Details
Interior
- Bedrooms
- 2
- Bathrooms
- 2
- Living Area
- 1,668 sqft
Exterior & Lot
- Year Built
- 2004
- Garage Spaces
- 2
Location
- Subdivision
- Hillside Park
- County
- Henderson
- ZIP Code
- 28739
Financial
- Listing Terms
- Cash, Conventional
Utilities
- Utilities
- Electricity Connected
- Sewer
- Septic Installed
Schools
- Elementary
- Bruce Drysdale
- Middle School
- Hendersonville
- High School
- Hendersonville
Interior Features
Breakfast Bar, Elevator, Entrance Foyer, Walk-In Closet(s)
Appliances
Dishwasher, Electric Range, Microwave, Refrigerator, Washer/Dryer
Patio & Porch Features
Deck, Enclosed, Front Porch
Lot Features
Other - See Remarks
Location
Listing Information
- MLS #
- CAR4330394
- Listing Agent
- Jill Hart
- Listing Office
- Pinnacle View Real Estate
- Listed Date
- Mar 15, 2026
Contact Jonathan Jackson About This Property
Interested in 135 Reservoir Drive? Send us a message and we'll get back to you.