+43 more
/ 48
+38
$725,000
3 bd
2 ba
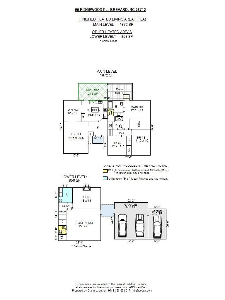
2,730 sqft
95 Ridgewood Place
Brevard, NC 28712
Active
2 days on market
Property Type
Residential
Year Built
1972
Lot Size
—
Garage
2 spaces
About This Home
Welcome to 95 Ridgewood Place, a charming mountain home offering comfort, privacy, and convenient access to everything the Brevard area has to offer. Located in the established Illahee Hills neighborhood, this property enjoys a setting that reflects a different era of development—when homes were thoughtfully placed on larger lots with space between neighbors, creating a sense of openness, privacy, and tranquility that is increasingly hard to find.
Surrounded by mature trees and established landscaping, the property has a welcoming, timeless feel that only long-settled neighborhoods can provide. The natural setting creates a peaceful environment where you can enjoy the beauty of Western North Carolina right outside your door while still remaining close to town.
Inside, the home features a warm and functional layout designed for comfortable everyday living and easy entertaining. Natural light fills the interior, creating a bright and inviting atmosphere throughout the main living areas. The kitchen offers practical workspace and storage, making meal preparation both efficient and enjoyable. Bedrooms provide comfortable retreats for owners and guests alike, offering quiet spaces to relax at the end of the day.
Step outside to enjoy the home’s outdoor areas, perfect for morning coffee, gardening, or simply taking in the peaceful mountain surroundings. The mature trees and established landscaping provide both shade and privacy while enhancing the property’s sense of character and place.
The location offers an ideal balance of privacy and convenience. Just minutes from downtown Brevard, you’ll have quick access to the area’s popular restaurants, local shops, breweries, and vibrant arts scene. The home is also conveniently located near the Brevard Racquet Club, offering easy access to tennis, fitness, and community activities.
Outdoor enthusiasts will appreciate being close to some of the region’s most celebrated natural destinations, including Pisgah National Forest and DuPont State Forest, both known for their world-class hiking, mountain biking, and iconic waterfalls.
With its inviting atmosphere, mature setting in the desirable Illahee Hills community, and convenient location near both town amenities and outdoor adventure, 95 Ridgewood Place offers a wonderful opportunity to enjoy the very best of mountain living in Brevard, North Carolina.
Surrounded by mature trees and established landscaping, the property has a welcoming, timeless feel that only long-settled neighborhoods can provide. The natural setting creates a peaceful environment where you can enjoy the beauty of Western North Carolina right outside your door while still remaining close to town.
Inside, the home features a warm and functional layout designed for comfortable everyday living and easy entertaining. Natural light fills the interior, creating a bright and inviting atmosphere throughout the main living areas. The kitchen offers practical workspace and storage, making meal preparation both efficient and enjoyable. Bedrooms provide comfortable retreats for owners and guests alike, offering quiet spaces to relax at the end of the day.
Step outside to enjoy the home’s outdoor areas, perfect for morning coffee, gardening, or simply taking in the peaceful mountain surroundings. The mature trees and established landscaping provide both shade and privacy while enhancing the property’s sense of character and place.
The location offers an ideal balance of privacy and convenience. Just minutes from downtown Brevard, you’ll have quick access to the area’s popular restaurants, local shops, breweries, and vibrant arts scene. The home is also conveniently located near the Brevard Racquet Club, offering easy access to tennis, fitness, and community activities.
Outdoor enthusiasts will appreciate being close to some of the region’s most celebrated natural destinations, including Pisgah National Forest and DuPont State Forest, both known for their world-class hiking, mountain biking, and iconic waterfalls.
With its inviting atmosphere, mature setting in the desirable Illahee Hills community, and convenient location near both town amenities and outdoor adventure, 95 Ridgewood Place offers a wonderful opportunity to enjoy the very best of mountain living in Brevard, North Carolina.
Property Details
Interior
- Bedrooms
- 3
- Bathrooms
- 2
- Living Area
- 2,730 sqft
Exterior & Lot
- Year Built
- 1972
- Garage Spaces
- 2
Location
- Subdivision
- Illahee Hills
- County
- Transylvania
- ZIP Code
- 28712
Financial
- Listing Terms
- Cash, Conventional
Utilities
- Sewer
- Septic Installed
Schools
- Elementary
- Brevard
- Middle School
- Brevard
- High School
- Brevard
Appliances
Dishwasher, Electric Range, Microwave, Refrigerator, Washer/Dryer
Lot Features
Sloped, Wooded
Location
Listing Information
- MLS #
- CAR4356804
- Listing Agent
- Paul Wilander
- Listing Office
- Looking Glass Realty
- Listed Date
- Mar 15, 2026
Contact Kim Schafer About This Property
Interested in 95 Ridgewood Place? Send us a message and we'll get back to you.