+46 more
/ 51
+41
$1,750,000
4 bd
5 ba
3,129 sqft
1882 Connestee Trail
Brevard, NC 28712
Property Type
Residential
Year Built
2026
Lot Size
1.30 acres
Garage
2 spaces
About This Property
Welcome to 1882 Connestee Trail, the pinnacle of Mountain-Modern luxury in the sought-after gated community of Connestee Falls.
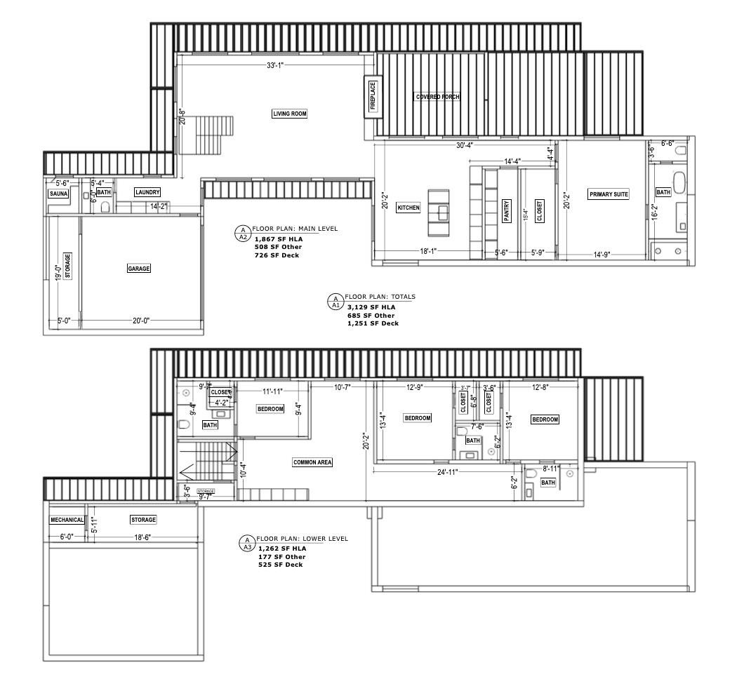
This exceptional high-end, new construction home blends natural materials with refined design, offering breathtaking long-range mountain views from nearly every room. Wrapped in rich cedar wood siding, the exterior harmonizes beautifully with its wooded surroundings, creating a striking architectural presence. Carefully tucked into the surrounding landscape, the home offers just under 3,200sf of living space with 4 bedrooms and 4.5 baths on a large double lot totaling 1.3 acres, ensuring ultimate privacy and serenity.
Inside, clean lines and high ceilings frame walls of glass that flood the home with natural light and showcase the incredible Blue Ridge Mountain vistas. A carefully curated design palette results in a stunning blend of sleek modernity, and timeless traditionalism. Warm, white-oak flooring & dark charcoal mill-work finishes add depth and texture throughout. The chef’s kitchen features honed marble countertops, custom cabinetry, and top-tier appliances.
The open-concept living and dining spaces flow seamlessly to expansive outdoor decks, inviting you to enjoy cool mountain breezes and unforgettable sunsets. Wood Burning Fireplaces adorn both the inside and outside living areas for year round ambience and comfort. Modern amenities include a full Butler's Pantry, a 2 Car Garage, and a luxurious dry Sauna. Ample bedroom suites provide spa-inspired retreats, while thoughtfully designed living areas offer both comfort and sophistication. This is elevated mountain-living at its finest.
The main floor features a generous Primary Suite complete with his & hers walk-in closet, dual shower heads, and a soaking tub. On the lower level, guests will find 3 additional bedrooms all with en-suite baths, mountain views and private deck space.
Located within Connestee Falls, residents can enjoy access to miles of hiking trails, pristine lakes, golf, tennis, pickleball, and clubhouse amenities, including an all new wellness center—all just minutes from the charm of downtown Brevard’s shopping & dining.
A rare opportunity to own a completely turn-key, refined Mountain-Modern sanctuary, where architecture and nature exist in perfect balance.
This exceptional high-end, new construction home blends natural materials with refined design, offering breathtaking long-range mountain views from nearly every room. Wrapped in rich cedar wood siding, the exterior harmonizes beautifully with its wooded surroundings, creating a striking architectural presence. Carefully tucked into the surrounding landscape, the home offers just under 3,200sf of living space with 4 bedrooms and 4.5 baths on a large double lot totaling 1.3 acres, ensuring ultimate privacy and serenity.
Inside, clean lines and high ceilings frame walls of glass that flood the home with natural light and showcase the incredible Blue Ridge Mountain vistas. A carefully curated design palette results in a stunning blend of sleek modernity, and timeless traditionalism. Warm, white-oak flooring & dark charcoal mill-work finishes add depth and texture throughout. The chef’s kitchen features honed marble countertops, custom cabinetry, and top-tier appliances.
The open-concept living and dining spaces flow seamlessly to expansive outdoor decks, inviting you to enjoy cool mountain breezes and unforgettable sunsets. Wood Burning Fireplaces adorn both the inside and outside living areas for year round ambience and comfort. Modern amenities include a full Butler's Pantry, a 2 Car Garage, and a luxurious dry Sauna. Ample bedroom suites provide spa-inspired retreats, while thoughtfully designed living areas offer both comfort and sophistication. This is elevated mountain-living at its finest.
The main floor features a generous Primary Suite complete with his & hers walk-in closet, dual shower heads, and a soaking tub. On the lower level, guests will find 3 additional bedrooms all with en-suite baths, mountain views and private deck space.
Located within Connestee Falls, residents can enjoy access to miles of hiking trails, pristine lakes, golf, tennis, pickleball, and clubhouse amenities, including an all new wellness center—all just minutes from the charm of downtown Brevard’s shopping & dining.
A rare opportunity to own a completely turn-key, refined Mountain-Modern sanctuary, where architecture and nature exist in perfect balance.
Property Details
Interior
- Bedrooms
- 4
- Bathrooms
- 5
- Basement
- Yes
- Living Area
- 3,129 sqft
- Fireplace
- Yes
Exterior & Lot
- Lot Size
- 1.30 acres
- Year Built
- 2026
- Garage Spaces
- 2
Location
- Subdivision
- Connestee Falls
- County
- Transylvania
- ZIP Code
- 28712
Financial
- Listing Terms
- Cash, Conventional
- HOA Fee
- $4,229/mo
Utilities
- Utilities
- Cable Available, Electricity Connected, Underground Power Lines, Underground Utilities, Wired Internet Available
- Sewer
- Septic Installed
Schools
- Elementary
- Unspecified
- Middle School
- Unspecified
- High School
- Unspecified
Appliances
Dishwasher, Electric Cooktop, Electric Oven, Electric Water Heater, Exhaust Hood, Refrigerator with Ice Maker, Tankless Water Heater, Wall Oven, Washer/Dryer
Heating
Central, Heat Pump
Cooling
Central Air, Heat Pump
Patio & Porch Features
Covered, Deck
Lot Features
Wooded, Views
Location
Listing Information
- MLS #
- CAR4353280
- Listing Agent
- Richard Bernard
- Listing Office
- Weichert Realtors Mountain Executives
- Listed Date
- Mar 15, 2026
Contact Susan Young About This Property
Interested in 1882 Connestee Trail? Send us a message and we'll get back to you.